Restauro beni architettonici
LABORATORIO DI RESTAURO
2009
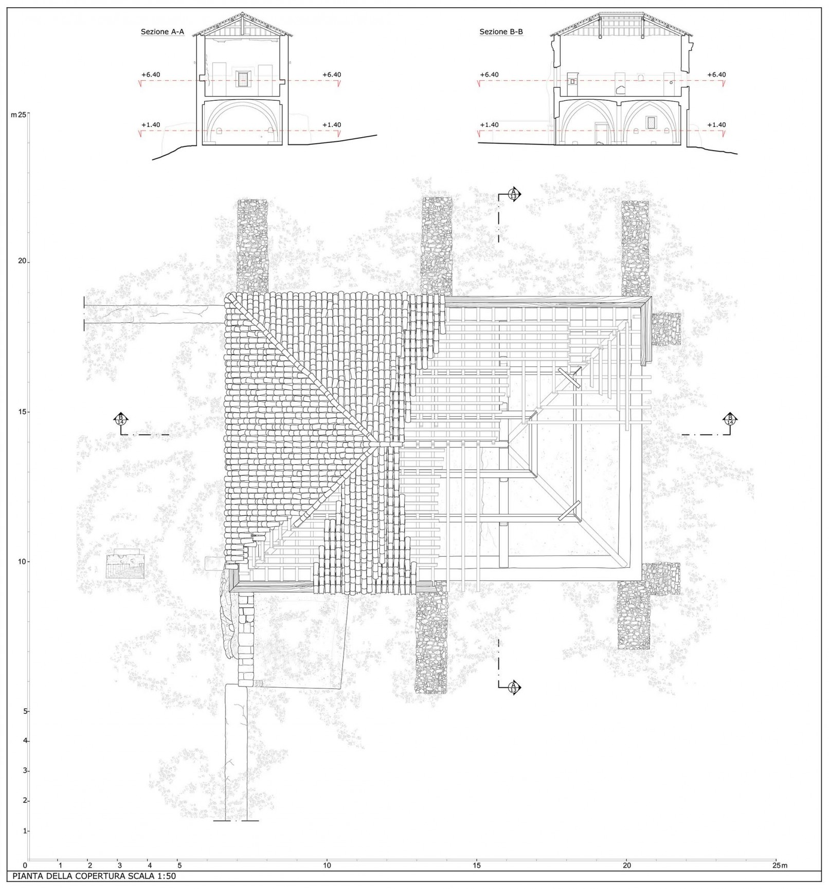
Progetto di Restauro di una porzione della foresteria della badia di Santa Maria della Gloria presso Anagni (FR) redatto insieme al Prof. Arch. Spiridione Alessandro Curuni della Facoltà di Architettura di Roma “Sapienza”.
Insieme a degli sketch per il progetto di restauro di un palazzo presso Tossicia (Te) sotto le alture del Gran Sasso.





